0 Baths

1,300 sqft

$39,000

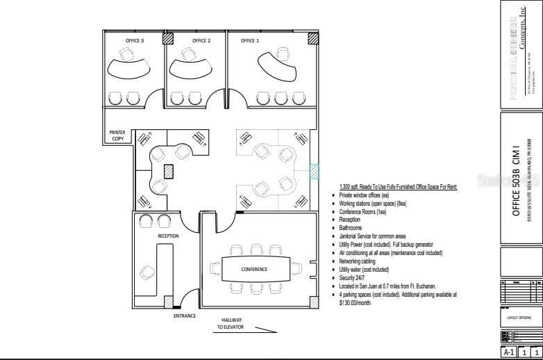
Centro Int de Mercadeo TORRE 1 PR-165 #503B GUAYNABO PR, 00968

Price per sqft

$30.00

Built in

2004

Property size

1,300 sqft

Property type

Commercial

Overview

Additional information

MLS ID

PR9108340

Interior features

Total Bathrooms

0


Fireplace

No


Cooling

Yes


Cooling Description

Central Air


Heating

No

Exterior features

Lot Size

0.89 Acres


Lot Features

Central Business District


Roof

Cement


Sewer

Public Sewer


Security

Fire Alarm, Fire Sprinkler System, Secured Garage / Parking, Smoke Detector(s)

Other property details

Lease Term

Monthly


Area Name

00968 - Guaynabo


Days on Market

89


Association Fee Frequency

Monthly


Accessibility

Accessible Approach with Ramp, Accessible Bedroom


Garage

No


View

No


County

Guaynabo


Water Source

Public


Utilities

Electricity Available, Emergency Power, Phone Available, Private, Water Connected

Listed by CAROMAR GROUP
Listing Contact: 787-214-2020 

The data relating to real estate for sale on this website comes in part from the Internet Data Exchange Program of Stellar MLS. Information provided is for consumer's personal, non-commercial use and may not be used for any purpose other than to identify prospective properties consumers may be interested in purchasing. participates in the Stellar MLS Internet Data Exchange (IDX) program, allowing display of other Stellar MLS broker's listings on this site. However, may not include all listings currently available. Information is deemed reliable but not guaranteed. Listing information is provided for consumer personal, non-commercial use, solely to identify potential properties for potential purchase; all other use is strictly prohibited and may violate relevant federal and state law.  Property locations as displayed on any map are best approximations only and exact locations should be independently verified. Properties displayed may be listed or sold by various participants in the MLS.

©2026 Stellar MLS. All rights reserved. 

Data last updated 1/16/2026, 4:28 AM UTC

Powered byLuxury Presence